|
התכנית להקמת סינמה סיטי באשדוד ממשיכה להתקדם - "עם העירייה או בלעדיה"
$(function(){ScheduleRotate([[function() {setImageBanner('ff0ecb20-d3c3-453c-bbe2-7d6f263845bf','/dyncontent/2025/11/24/91cabf8a-9de4-456b-96cd-5e2abb489f90.jpg',20451,'עמרם אברהם אייטם כתבה ',525,78,true,20074,'Image','');},15],[function() {setImageBanner('ff0ecb20-d3c3-453c-bbe2-7d6f263845bf','/dyncontent/2025/11/25/11cbb0a5-aaa0-4313-b88d-38d8b1c9f813.gif',20479,'קרייזי רום אייטם כתבה ',525,78,true,20074,'Image','');},15],[function() {setImageBanner('ff0ecb20-d3c3-453c-bbe2-7d6f263845bf','/dyncontent/2025/2/25/4951bead-7512-441f-9887-e771f8573cd1.jpg',19117,'דיוואן אייטם כתבה ',525,78,true,20074,'Image','');},15],[function() {setImageBanner('ff0ecb20-d3c3-453c-bbe2-7d6f263845bf','/dyncontent/2025/12/2/71654dce-1273-416c-a749-77ed613494a3.jpg',20509,'יורם בונה הארץ אייטם כתבה ',525,78,true,20074,'Image','');},15],[function() {setImageBanner('ff0ecb20-d3c3-453c-bbe2-7d6f263845bf','/dyncontent/2025/11/10/14a74014-7828-47c1-82d9-423f95a36653.gif',20357,'אירופלקס אייטם כתבה ',525,78,true,20074,'Image','');},15]]);})
מנכ"ל רשת ביג איתן בר זאב בראיון לעיתון "כאן דרום" אומר לתושבי אשדוד כי למרות ההתנגדות העזה מצד החרדים במועצה: "הסינמה סיטי באשדוד יקום גם יקום, עם העירייה או בלעדיה". התכנית, שהוגשה לועדה המחוזית לתכנון ובניה, כוללת בנוסף מסוף תחבורה אותו תקים ביג והיא נמצאת בהליכי אישור אחרונים בועדה המחוזית לתכנון ובניה
 תושבי אשדוד והסביבה רוצים סינמה סיטי ומנכ"ל ביג מרכזי קניות, איתן בר זאב, אומר כי הסינמה קום יקום באשדוד. בראיון שנתן בר זאב לעיתון "כאן דרום", אומר בר זאב: "מתחם הסינמה סיטי נמצא בוועדה המחוזית, הסינמה סיטי באשדוד יקום גם יקום, עם העירייה או בלעדיה. בתחילת הדרך העירייה תמכה. בהמשך כרגיל הפכו את עורם והפסיקו את התמיכה, אני מניח ששוב, בגלל עמדת החרדים. לכן עקפנו את העירייה והלכנו לוועדה המחוזית בלי העירייה. התב”ע החדשה עשתה חסד עם העירייה כי היא מאפשרת להקים מסוף תחבורה, לכן העירייה עוד פעם שינתה את עמדתה והחליטה לתמוך בתכנית, רק כדי שלא יבטלו את מסוף האוטובוסים חס ושלום”.
כמה זמן ייקח להערכתך עד שהסינמה סיטי ייבנה? 
“אני מניח שהתב”ע החדשה תאושר בקרוב מאוד, רק שלאחר מכן אני תלוי בעירייה, כי נצטרך לקבל היתר בנייה מהוועדה המקומית בעיריית אשדוד, ואני מאוד מקווה שהם לא יעכבו אותנו שם. ייתכן שאם בעירייה לא יעשו את זה, נלך לוועדת ערר, ואני גם מניח שזה מה שיקרה בסוף”.  
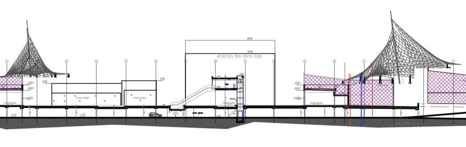
בדיקת אשדוד נט העלתה כי התכנית אותה הגישה ביג מרכזי קניות בשנת 2015 בועדה המחוזית, נמצאת בשלב ההפקדה ברשומות, כאשר ניתנה התנגדות פעוטה של רמ"י לתיקון התכנית. התוכנית כוללת שינוי ייעוד לשטח בו נמצא הביג כעת מיעוד ממרכז תחבורה ואחסנה ליעוד מסחר ותעסוקה, ומרכז תחבורה. מדובר בהקמת מסוף אוטובוסים שיוקם כחלק מפרויקט הגל הירוק. את המסוף תקים ביג.
$(function(){setImageBanner('5f69f169-cd35-4ae2-b00b-4f8772714285','/dyncontent/2021/3/2/e3734725-fab6-4916-8f0d-e8c6cd074b39.gif',12348,'איווה אייטם כתבה ',525,78,false,20076,'Image','');})
$(function(){ScheduleRotate([[function() {setImageBanner('b3a1624d-b751-48ed-a7f4-d397f32c095e','/dyncontent/2017/6/1/c41baeb6-e29b-4415-b67b-b3940dd9bdf5.gif',1807,'אייטם אירועים 525-60',525,78,true,18157,'Image','');},15],[function() {setImageBanner('b3a1624d-b751-48ed-a7f4-d397f32c095e','/dyncontent/2017/6/5/ddc064ee-648d-4ba4-ad6e-72da51a98ff7.jpg',1808,'אייטם לוח אשדוד נט 525*60',525,78,true,18157,'Image','');},15]]);})
|
|
|
|